Precast concrete panel apartment buildings, Romania
From World Housing Encyclopedia
1. General Information
Report: 83
Building Type: Precast concrete panel apartment buildings
Country: Romania
Author(s): Maria Bostenaru Dan, Ilie Sandu
Last Updated:
Regions Where Found: Buildings of this construction type can be found in all major urban areas in the country. This type of housing construction is commonly found in urban areas.
Summary: This multi-family urban housing construction was practiced in Romania between the 1960s and 1990s. The load-bearing system is a precast reinforced concrete large panel construction.Buildings of this type are typically highrises (10or 11 stories high), although there are also low to medium-rise buildings (4 to 8 stories high) of this construction type (with different structural details). In general, buildings of this type are of rectangular plan, with honeycomb (“fagure”) layout, housing typically four apartments per floor. Wall panels are laid in both the longitudinal and the transverse direction. The panels are mechanically coupled at the base, with continuous vertical reinforcement bars.This region is well known as a seismically prone area, with the epicentre of damaging earthquakes close to Vrancea. Earthquakes with the Richter magnitude of over 7.0 occur on average every 30 years. Bucharest, the capital, is located around 150 km south of the epicentre and lies in the main direction of the propagation of seismic waves. The Bucharest area is located on the banks of the Dmbovita and Colentina rivers, on non homogenous alluvial soil deposits.During the earthquake of 4 March 1977 (Richter magnitude 7.2), over 30 buildings collapsed inBucharest, killing 1,424 people. There was no significant damage reported to the buildings of this construction type in the 1977 earthquake.Consequently, this construction technique has continued to be practiced since the earthquake.The building described in this report was builtafter the 1977 earthquake, and has not been exposed to damaging earthquakes so far.
Length of time practiced: Less than 25 years
Still Practiced: No
In practice as of: 1990
Building Occupancy: Residential, 50+ units
Typical number of stories: 4-11
Terrain-Flat: Typically
Terrain-Sloped: 3
Comments: This construction was practiced between 1960 and 1990. In the Bucharest area,buildings of this type were initially built in 1959
2. Features
Plan Shape: Rectangular, solid
Additional comments on plan shape:
Typical plan length (meters): 25-125
Typical plan width (meters): 25-125
Typical story height (meters): 2.6
Type of Structural System: Structural Concrete: Precast Concrete: Shear wall structure with precast wall panel structure
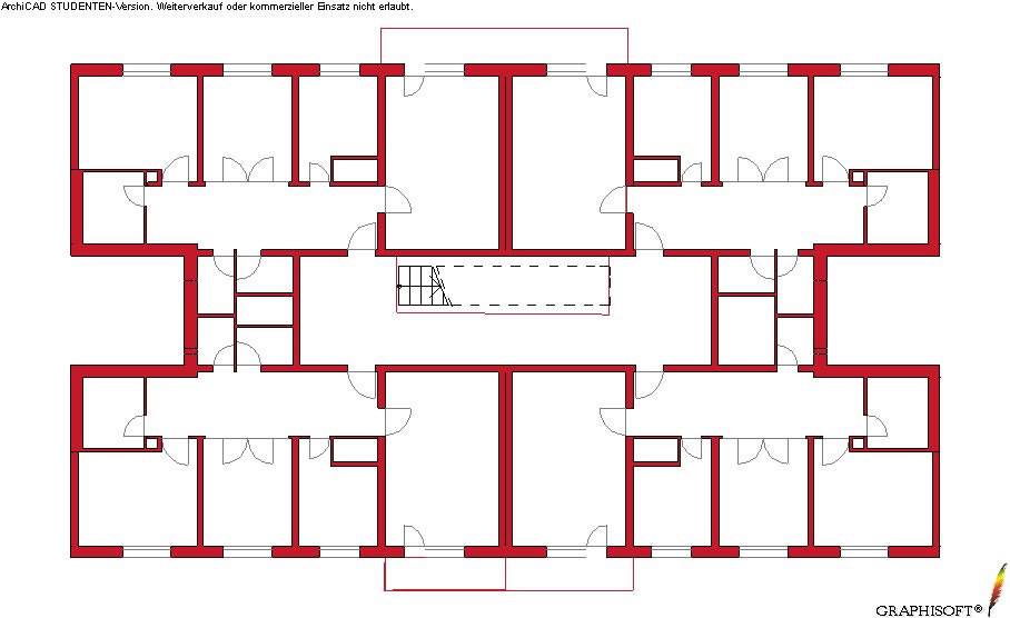
Additional comments on structural system: This building type is characterized by a so-called “honeycomb” (“fagure” in Romanian) building plan characteristic for Romanian housing design - the same system is described for the “OD” housing type (World Housing Encyclopedia Report 78). It consists of box-type units creating rooms. Due to such a building configuration, the walls are well connected and are able to carry the loads in a uniform manner.Floor structures are 120 mm thick reinforced concrete solid slabs supported by the load bearing walls.Typical wall-floor connection is illustrated in Figure 13. These buildings are supported by mat foundations.The basement walls are cast-in-place.The special feature of the building described in this report is that the facade walls are non-load bearing structures of lightweight block masonry construction. In some buildings of this construction type, precast concrete wall panels are used as facade elements. The interior wall panels are of solid concrete construction - in this case, there is no need for a 3-layered panel section with thermal insulation in the middle (typical for the facade wall panels).The load-bearing walls are laid in two principal directions, as illustrated in Figure 9. In general, there are two interior walls in the longitudinal direction and nine walls in the transverse direction; it should be noted that four transverse walls are continuous over the building width, whereas the other five walls are shorter.In addition, there are lightweight concrete partition walls, some of which have been removed in building renovations carried out by owners. The main lateral load-resisting structure consists of 200 mm precast reinforced concrete wall panels supported by RC slabs (walls in pre-1977 buildings are typically 140 mm thick). The wall panels form a box of room size (“panouri mari”). The lateral stability is provided by the columns tied to the wall panels, as illustrated in an example of corner panels, see Figure 12. Boundary elements are used instead of the columns as “stiffening” elements at the exterior (as shown in Figure 10). According to NBS (1977), the mechanical union of wall panels in the joints is achieved by means of splice bars welded to the transverse reinforcement of adjacent panels. Longitudinal bars, used singly in vertical joints and in pairs in horizontal joints, provide an added bearing area for the transfer of tension across the connections. The coupling of the floor panels is somewhat different, as illustrated in Figure 15. The top bars are splice welded while the bottom bars are bent up 90 degrees and lapped. This particular scheme gives greater continuity to the floors at the supports than the lapped loop arrangement used in the high-rise building system. The wall panels are mechanically coupled at their base, as illustrated in Figure 16, so that all vertical bars are continuous across the horizontal joints (it should be noted that in the case of the high-rise building panel connections only the longitudinal bars of vertical joints are coupled).
Gravity load-bearing & lateral load-resisting systems:
Typical wall densities in direction 1: 5-10%
Typical wall densities in direction 2: 5-10%
Additional comments on typical wall densities: The typicalstructural wall density is 5% - 7% Wall density is larger in the transverse direction.
Wall Openings: There are between 20 and 30 windows per floor. Each room has one window and one door, except forthe corridors (larger number of doors). Windows constitute around 25% of the exterior wall area, whereas doors constitute less than 15% of the interior wall area.
Is it typical for buildings of this type to have common walls with adjacent buildings?: No
Modifications of buildings: Modifications in buildings of this type are not common.
Type of Foundation: Shallow Foundation: Mat foundation
Additional comments on foundation: In general, these buildings are supported by mat foundations. There are castin-situ basement walls.
Type of Floor System: Other floor system
Additional comments on floor system: Solid slabs (cast-in-place); Solid slabs (precast)
Type of Roof System: Roof system, other
Additional comments on roof system: Solid slabs (cast-in-place); Solid slabs (precast)
Additional comments section 2: When separated from adjacent buildings, the typical distance from a neighboring building is 2.5 meters.
3. Building Process
Description of Building Materials
| Structural Element | Building Material (s) | Comment (s) |
|---|---|---|
| Wall/Frame | Reinforced concrete:Steel | Steel PC 52 - steel yield strength 350 MPa; Concrete:around 1970s, typical concrete strength was in the range of 25 MPa (cube strength)Information on concrete and steel properties is in agreement with the reports after the1977 earthquake(e.g. NBS 1977) |
| Foundations | ||
| Floors | ||
| Roof | ||
| Other |
Design Process
Who is involved with the design process? Engineer Architect Other
Roles of those involved in the design process: The building design was developed by “Design Institutes”, which employ trained technical specialists, including engineers and architects.
Expertise of those involved in the design process: The building design was developed by “Design Institutes”, which employ trained technical specialists, including engineers and architects.
Construction Process
Who typically builds this construction type? Contractor
Roles of those involved in the building process: Buildings of this type were financed by government housing funds and were built by construction companies.
Expertise of those involved in building process: The construction was made by technical specialists employed by the construction companies using the specialized equipment. The construction was additionally supervised by a special unit called “State Inspection for Buildings”.
Construction process and phasing: The construction was performed using specialized equipment for prefabricated construction. The construction of this type of housing takes place in a single phase. Typically, the building is originally designed for its final constructed size. In some cases, new building blocks were built at the same location; however, these new blocks were built as completely new buildings with their own walls and foundations.
Construction issues:
Building Codes and Standards
Is this construction type address by codes/standards? Yes
Applicable codes or standards: This construction type is addressed by the codes/standards of the country. P-100-81. The year the first code/standard addressing this type of construction issued was 1981. The most recent code/standard addressing thisconstruction type issued was 1992.
Process for building code enforcement: Information not available.
Building Permits and Development Control Rules
Are building permits required? Yes
Is this typically informal construction? No
Is this construction typically authorized as per development control rules? Yes
Additional comments on building permits and development control rules: Building permits were required in the period when this construction was practiced. Building inspections were performed by the construction company staff and also by a special government department called “State ConstructionInspection.”
Building Maintenance and Condition
Typical problems associated with this type of construction:
Who typically maintains buildings of this type? Owner(s)
Additional comments on maintenance and building condition:
Construction Economics
Unit construction cost: The 1991 price was 2590 lei/m.sq. of the built area (176 USD/m/sq/.). Note that this is a real estate price(reflecting the value of an existing building) and not the cost of new construction (which is not available).
Labor requirements: Information not available, as the construction company no longer exists.
Additional comments section 3:
4. Socio-Economic Issues
Patterns of occupancy: One family per housing unit.Each building typically has more than 100 housing unit(s). 150 units in each building. In general, there are 48 to 54housing units per building block. Each building block is centered around a staircase. There are usually between one and five building blocks in a typical building complex.
Number of inhabitants in a typical building of this construction type during the day: >20
Number of inhabitants in a typical building of this construction type during the evening/night: >20
Additional comments on number of inhabitants:
Economic level of inhabitants: Middle-income class
Additional comments on economic level of inhabitants: Ratio of housing unit price to annual income: 1:1 or better
Typical Source of Financing: Other
Additional comments on financing: Before 1990, the construction was financed by funds from the central government.After 1990 (post-communist period), individual apartments are owned by the inhabitants.
Type of Ownership: Own outright
Additional comments on ownership:
Is earthquake insurance for this construction type typically available? Yes
What does earthquake insurance typically cover/cost: There is “Voluntary Complex Insurance of the Households of Physical Persons” throughS.C. ASIGURAREA ROMNEASCA - ASIROM S.A. (a public company).
Are premium discounts or higher coverages available for seismically strengthened buildings or new buildings built to incorporate seismically resistant features?: No
Additional comments on premium discounts:
Additional comments section 4: There is “Voluntary Complex Insurance of the Households of Physical Persons”through “S.C. ASIGURAREA ROMNEASCA - ASIROM S.A.” (public company)
5. Seismic Vulnerability
Past Earthquakes in the country which affected buildings of this type
| Year | Earthquake Epicenter | Richter Magnitude | Maximum Intensity |
|---|---|---|---|
| 1986 | Vrancea | 7 | 8 (MMI) |
| 1990 | Vrancea | 6.7 | 7 (MMI) |
Past Earthquakes
Damage patterns observed in past earthquakes for this construction type: No damage to buildings of this type was observed in the 1986 and 1990earthquakes. In the 1977 earthquake (M 7.2 ), no significant damage was observed to other buildings of similar construction.
Additional comments on earthquake damage patterns: According to the reports on the 1977earthquake (Balan et al. 1982), some buildings of this type experienced cracking in the wall panel connection area, especially at the wall corner joints and intersections, and wall-floor connections. In some cases, those were existing cracks that were widened in the 1977 earthquake. However, in the city of Lasi (north of the epicentre), 45cracks developed in the walls especially above the openings and around the staircases in some 8-storey buildings built around 1960.
Structural and Architectural Features for Seismic Resistance
The main reference publication used in developing the statements used in this table is FEMA 310 “Handbook for the Seismic Evaluation of Buildings-A Pre-standard”, Federal Emergency Management Agency, Washington, D.C., 1998.
The total width of door and window openings in a wall is: For brick masonry construction in cement mortar : less than ½ of the distance between the adjacent cross walls; For adobe masonry, stone masonry and brick masonry in mud mortar: less than 1/3 of the distance between the adjacent cross walls; For precast concrete wall structures: less than 3/4 of the length of a perimeter wall.
| Structural/Architectural Feature | Statement | Seismic Resistance |
|---|---|---|
| Lateral load path | The structure contains a complete load path for seismic force effects from any horizontal direction that serves to transfer inertial forces from the building to the foundation. | TRUE |
| Building Configuration-Vertical | The building is regular with regards to the elevation. (Specify in 5.4.1) | TRUE |
| Building Configuration-Horizontal | The building is regular with regards to the plan. (Specify in 5.4.2) | TRUE |
| Roof Construction | The roof diaphragm is considered to be rigid and it is expected that the roof structure will maintain its integrity, i.e. shape and form, during an earthquake of intensity expected in this area. | TRUE |
| Floor Construction | The floor diaphragm(s) are considered to be rigid and it is expected that the floor structure(s) will maintain its integrity during an earthquake of intensity expected in this area. | TRUE |
| Foundation Performance | There is no evidence of excessive foundation movement (e.g. settlement) that would affect the integrity or performance of the structure in an earthquake. | TRUE |
| Wall and Frame Structures-Redundancy | The number of lines of walls or frames in each principal direction is greater than or equal to 2. | TRUE |
| Wall Proportions | Height-to-thickness ratio of the shear walls at each floor level is: Less than 25 (concrete walls); Less than 30 (reinforced masonry walls); Less than 13 (unreinforced masonry walls); | TRUE |
| Foundation-Wall Connection | Vertical load-bearing elements (columns, walls) are attached to the foundations; concrete columns and walls are doweled into the foundation. | TRUE |
| Wall-Roof Connections | Exterior walls are anchored for out-of-plane seismic effects at each diaphragm level with metal anchors or straps. | N/A |
| Wall Openings | TRUE | |
| Quality of Building Materials | Quality of building materials is considered to be adequate per the requirements of national codes and standards (an estimate). | TRUE |
| Quality of Workmanship | Quality of workmanship (based on visual inspection of a few typical buildings) is considered to be good (per local construction standards). | TRUE |
| Maintenance | Buildings of this type are generally well maintained and there are no visible signs of deterioration of building elements (concrete, steel, timber). | TRUE |
Additional comments on structural and architectural features for seismic resistance: The buildings described in this report were designed in accordance with theP100-81 norm (the 1981 edition of the Romanian seismic standard).
Vertical irregularities typically found in this construction type: Other
Horizontal irregularities typically found in this construction type: Other
Seismic deficiency in walls:
Earthquake-resilient features in walls: - Large panel stiffness; redundancy provided by several wall panels in both directions with frequent cross walls; regular and symmetric plan; good quality of concrete construction.
Seismic deficiency in frames:
Earthquake-resilient features in frame:
Seismic deficiency in roof and floors:
Earthquake resilient features in roof and floors: #NAME?
Seismic deficiency in foundation:
Earthquake-resilient features in foundation:
Seismic Vulnerability Rating
For information about how seismic vulnerability ratings were selected see the Seismic Vulnerability Guidelines
| High vulnerability | Medium vulnerability | Low vulnerability | ||||
|---|---|---|---|---|---|---|
| A | B | C | D | E | F | |
| Seismic vulnerability class | |- | o | -| | |||
Additional comments section 5: Information on earthquake damage patterns is based on other buildings of similar construction that experienced the 1977 earthquake. The building described in this report was built after the 1977 earthquake.
6. Retrofit Information
Description of Seismic Strengthening Provisions
| Structural Deficiency | Seismic Strengthening |
|---|
Additional comments on seismic strengthening provisions:
Has seismic strengthening described in the above table been performed? Based on the good performance of buildings of similar construction in the 1977 earthquake, it is considered that retrofit is not required.
Was the work done as a mitigation effort on an undamaged building or as a repair following earthquake damages?
Was the construction inspected in the same manner as new construction?
Who performed the construction: a contractor or owner/user? Was an architect or engineer involved?
What has been the performance of retrofitted buildings of this type in subsequent earthquakes?:
Additional comments section 6:
7. References
- Balan, S., Cristescu, V., and Cornea, I. (1982). Cutremurul de Pamnt din Romnia de la 4 Martie1977, The Academy of the Socialist Republic of Romania, Bucharest, Romania. (refer to Chapter VI.2.3.“Behaviour of new residential buildings” by Mircea Lupan)
- Smighielschi, S. (1990). Course notes on Building Construction, Architectural Institute “Ion Mincu”,Bucharest, Romania.
- NBS (1977). Observations on the Behavior of Buildings in the Romania Earthquake of March 4, 1977.U.S. Department of Commerce/National Bureau of Standards, NBS Special Publication 490, Washington,D.C., USA.
Authors
| Name | Title | Affiliation | Location | |
|---|---|---|---|---|
| Maria Bostenaru Dan | Dipl.-Ing. | Urban and Landscape Department, on Mincu University of Architecture and Urbanism | str. Academiei nr. 18-20, Bucharest 010014, ROMANIA | Maria.Bostenaru-Dan@alumni.uni-karlsruhe.de |
| Ilie Sandu | Ing. | Bucharest, Romania |
Reviewers
| Name | Title | Affiliation | Location | |
|---|---|---|---|---|
| Svetlana N. Brzev | Instructor | Civil and Structural Engineering Technology, British Columbia Institute of Technology | Burnaby BC V5G 3H2, CANADA | sbrzev@bcit.ca |


















